SZAD
品牌文化
?資 訊?
近日,中國工程院院士、深總院首席總建筑師孟建民,深總院副總經理、執行總建筑師楊旭,建筑創作院建筑師徐昊于《城市建筑空間》雜志2024年第9期發表論文“深圳前海國際會議中心創作與實踐”。該文從公共性提升、形象塑造、環境營造等方面生動闡述了深圳前海國際會議中心項目的創作與實踐歷程。
深圳前海國際會議中心創作與實踐
01 引 言
近年來,我國已成為全球重要的會展市場之一,會展建筑也進入了全新的發展階段。北京新國展中心、廣州國際會展中心、國家會展中心(上海)等一系列設計先進、設施完備的大型國際會議建筑相繼投入運營。此類建筑通常位于城市中的重要區位,對功能靈活性、結構合理性及物流組織等方面都有較高要求。此外,如何在滿足大體量、大跨度建筑要求的同時樹立良好的城市標識形象,最大限度地協調其在城市空間中的開放性與公平性也是設計的重要課題。
前海國際會議中心項目位于深圳市前海合作區門戶位置,地上建筑面積2.3萬㎡,地下建筑面積1.8萬㎡。在方案創作過程中,設計團隊嘗試通過周密思考與理性創作使建筑保持對城市足夠的“謙遜姿態”,通過嚴格控制高度比例緩解其與城市、人的關系。同時,項目盡可能將空間還給城市和市民,使建筑保持“平易近人”的姿態,主動融入城市。

△全景鳥瞰
為保持對城市的尊重,建筑主體退讓出適度的城市空間。基地南側緊鄰城市道路,建筑退讓近40m距離,形成充足的入口緩沖空間,結合18m進深的檐下灰空間,形成層層遞進的空間序列。基地北側連接面積近3萬㎡的城市公園,設計團隊在確保會議中心大宴會廳與多功能廳使用凈高的前提下,主動降低建筑高度,減少建筑體量帶給城市公共綠地的壓迫感。
通過景觀設計與市民可達的下沉廣場設計,項目的會議中心基地與北側公園空間自然連續、互為景致,既優化了建筑帶給城市的空間感受,又使建筑展現出積極開放的姿態。屋檐沿城市界面出挑形成深遠的檐下灰空間,為市民提供駐足場所,在確保運維安全的前提下增加了建筑的開放性,也使建筑形式更加適應嶺南地區炎熱多雨的氣候條件。

△建筑主體退讓出城市空間

△檐下空間

△建筑與城市公園俯瞰

△北側公園入口處看向建筑
在建筑與場地關系的處理上,總體策略為避免建筑與北側城市公園一并被封閉為“私家花園”,從空間形態、空間秩序及空間感受3個方面全面展現會議中心的開放與友好。
03 以“技”為“術”的形象塑造
會議中心建筑形制具有獨特的東方氣韻,但坡屋頂的選擇并非刻意追求傳統形制,而是基于城市空間與建筑功能的需求。建筑與道路之間的場地關系較為局促,通過空間優化控制建筑高度,同時屋面由北向南跌落,自然形成梯級,坡屋頂順勢而成。坡屋頂沿南北方向延伸,在建筑入口處局部掀起,既豐富了建筑形式語言,又提示了入口位置,從而形成中心軸線序列感。
建筑東西兩側帷幕呼應了坡屋頂,柔化了建筑與城市的空間關系,營造出鮮明的東方意境。南北兩處大屋面坡度曲線由設計團隊根據傳統屋面舉架做法,從常用的五舉、六五舉、七五舉和九舉等坡度關系中提取出26°~42°的坡度漸變區間并將其適度延伸,最大程度地呈現傳統建筑坡屋頂的真實美感,同時也兼顧了現代建筑尺度下的空間感受。

△主入口
在高層建筑林立的深圳前海區域,建筑坡屋頂成為獨特的城市界面。傳統坡屋頂封閉且單調,設計團隊希望會議中心呈現出更為豐富的城市形象。會議中心坡屋頂由主屋面和兩側帷幕組成,主屋面面積10200㎡,由866塊單元板組成;側帷幕面積2900㎡,由1662塊單元玻璃組成。
主屋面系統采用檳金色彩釉玻璃屋面單元板,由彩釉Low-E玻璃與鋁型材連接而成,對應主體鋼結構跨度將單元板塊大小設置為9000mm×1800mm;側帷幕面板玻璃為彩釉夾膠中空玻璃,釉點通透率控制在35%~80%,其有序變化使帷幕呈現出細膩的漸變效果。在不同時間、不同光線下,坡屋頂呈現出豐富的色彩與光影變化。
自然光透過彩釉玻璃屋頂投射到室內,室內的氣氛更加生動。彩釉玻璃屋面單元板經多輪試驗,結合結構、排水、泛光照明等專項進行一體化設計,是目前我國最大的彩釉玻璃屋面系統,使建筑更好地彰顯出現代與古典交融的氣質。


△屋頂燈光效果
04 以“景”寫“意”的環境營造
在建筑室外南北兩側設置片石假山,四周設計環繞建筑的水景,將整體景觀打造為“山環水抱”的獨特風格。在建筑兩側種植蒼勁有力的常綠大喬木塑造前廣場的儀式感,后庭院貴賓出入口區采用形態優雅的盆景作為對景,形成“前廣場后庭院”的空間序列。
南廣場簡潔大氣、視線通透,在廣場中心觀石兩側布置2盞特色花燈、8棵挺拔的加拿列海棗、20根筆直的旗桿塑造前廣場的儀式感,同時建筑被鏡面水景所環繞。

北廣場強調貴賓禮儀與私密感,在出入口區中心位置布置長18m、寬6m的羅漢松樹石盆景。受中國山水畫啟發,出入口選用7株大小不一、姿態各異的羅漢松與泰山石協調布局,以樹為主、以石為賓,樹有姿、石有勢,樹石交融渾然一體,營造庭院深幽的意境。

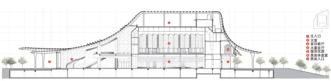
集約高效是會議建筑的設計重點,與運營團隊進行多輪方案比選后,設計團隊針對各會議廳的尺寸與比例進行了大量對比分析與推敲,最終確定“外廊內廳”的緊湊型布局模式。



1F分會場面積1900㎡,由3個多功能廳組成,空間可分可合、靈活多變。技術、廚房、后勤等配套用房緊鄰會場布置,以確保會議中心的高效運營。
2F設置主會場大宴會廳,面積2300㎡,面寬與進深比約1.5,兼顧會場視線設計的合理性與桌椅擺放模式的靈活性,確保人員處在距離最遠位置也能快速到達指定座位。主會場可劃分為2~3個多功能廳靈活使用,貴賓廳、接見廳、等候廳等配套用房及設備操控、轉播、同聲傳譯等技術用房均環繞主會場布置,以滿足高等級會議的使用需求。
1F、2F會場外均設置通透的環廊,與傳統會議中心封閉、神秘的形象不同,該設計可向城市展現會議中心內部的高效使用場景。
與動輒十幾萬平方米的大型會議中心不同,前海國際會議中心雖規模有限,但可提供5000㎡凈地毯面積,滿足3500人、多元化模式的會議使用。緊湊高效的空間模式與清晰便捷的流線組織使其成功承辦了深圳經濟特區建立40周年慶祝大會。
會議中心的高效運轉不能僅依靠內部流線設計,設計團隊統籌考慮建筑全生命周期智能化集成應用,采用建筑信息資源共享、物業綜合管理、安防系統聯動、功能運行優化、智能停車管理及全方位建筑能耗管控等全要素智能控制集成系統,使會議中心成為“會思考”的建筑,最大限度地保證其運轉效率。
前海國際會議中心從設計到使用僅用了366天,項目的有序快速推進得益于孟建民院士主持的總建筑師負責制。在建筑設計方案確定后,團隊建立了全專業、全過程項目組織管理系統對項目全要素進行把控,協同整合各部分資源。正因全套管理體系的建立,建筑專業得以統籌9個專業、12個專項團隊、5個外部咨詢團隊,促進各專業、各團隊協作,從而保證了項目的高效穩步推進。
為便于總控,建筑師負責制團隊將建筑細分拆解為若干設計篇章,每個篇章都有大量細部管控內容,設計團隊針對每項內容進行對比推敲,并由總建筑師進行最終判斷與決策。從微觀到宏觀逐層把控,設計團隊使建筑呈現出內外和諧的整體效果。
深圳前海國際會議中心以平和的姿態融入城市,鮮明的東方語境使其成為前海合作區中獨特的對外交流空間載體。其高質量落成為深圳增添了專業、集成的地標性會議中心,填補了前海及深圳地區大型專業會議中心場館的市場空白,可滿足前海日益增長的政務、商務、國際交流需求,進一步提升了前海營商環境,成為前海城市客廳的重要對外窗口與深圳城市新中心的璀璨明珠。

深圳前海國際會議中心
項目地點:廣東省深圳市前海合作區
建設單位:深圳市前海建設投資控股集團有限公司
設計單位:深圳市建筑設計研究總院有限公司
主創建筑師:孟建民
建筑設計:楊旭、徐昊、魏來、廉大鵬、梅寒銳、張建軍、徐云平、趙百星、劉文旭、黃海斌、鐘先鋒、劉賀兵、李揚、謝春紅、郭方
BIM咨詢與設計:深總院數字化建筑研究所
室內設計:北京建院裝飾工程設計有限公司
景觀設計:艾奕康設計與咨詢(深圳)有限公司
幕墻設計:廣東省建筑設計研究院有限公司
照明設計:深圳前海盧森特照明設計咨詢有限公司
結構咨詢:奧雅納工程顧問有限公司
智能化設計與咨詢:深圳市鎰銘機電工程顧問有限公司
圖片來源:張超、孔辰承
占地面積:24,294.58㎡
建筑面積:40,605.41㎡
設計時間:2017年
竣工時間:2020年